中国电工技术学会团体标准T/CES 092-2022《大型换流变压器实体火灾模拟试验技术规范》由中国电工技术学会提出,中国矿业大学(北京)、国网江苏省电力有限公司、国网南瑞集团有限公司、国网电力科学研究院有限公司、许昌开普电气研究院有限公司、中国南方电网超高压输电公司检修试验中心、许昌开普检测研究院股份有限公司、清华大学公共安全研究院、应急管理部天津消防研究所等单位共同编制完成。该标准规定了大型换流变压器大型换流变压器压器实体火灾模拟试验的试验设计、试验模型设置、试验方法、火灾当量计算方法、安全防护措施和试验报告等内容,填补大型换流变实体火灾模拟试验技术标准体系空白,为解决大型换流变灭火有效性提供支撑。
1 标准起草单位及主要起草人
本文件起草单位:中国矿业大学(北京)、国网江苏省电力有限公司、国网南瑞集团有限公司、国网电力科学研究院有限公司、许昌开普电气研究院有限公司、中国南方电网超高压输电公司检修试验中心、许昌开普检测研究院股份有限公司、清华大学公共安全研究院、应急管理部天津消防研究所。
本文件主要起草人:陈鹏、蔚超、郭鹏宇、吴刘锁、王志刚、罗剑飞、刘洋、韩万林、初阳、邓军、李春阳、孙占辉、刘晅亚。
2 标准编制背景
近年来,我国已迈入新发展阶段,经济社会发展及人民对电力可靠供应的要求越来越高,对停电事件容忍度越来越低。刑法修正案颁布后,针对消防事故和消防安全管理的要求越来越严格。近几年几起重大的变电站事故,暴露出站内大型充油设备故障起火后发展速度快、强度大等隐患,对国家发展、社会进步、人民生命及财产安全构成严重威胁。相对电力系统的发展而言,当前对于大型换流变压器实体火灾的发展过程研究较少,尚无统一的样版式大型换流变压器实体火灾模拟试验流程与规范。
《大型换流变压器实体火灾模拟试验技术规范》的编制根据大型换流变压器结构特点,结合大型换流变压器火灾动力学特征,同业界专家、相关单位进行多次讨论研究。率先进行了标准制定和发布,对解决大型换流变压器灭火实验模型的试验平台、试验条件、试验方法和测量技术的不一致起到了规范、指导作用。
3 标准主要内容
从内容上来看,该标准主要包含以下几个部分:
(1)范围
本规范规定了大型换流变压器实体火灾模拟试验的试验设计、试验模型设置、试验方法、火灾当量计算方法、安全防护措施和试验报告等内容。
本规范适用于户外进行的±500kV 及以上大型换流变压器火灾模拟试验、大型换流变压器大型换流变压器压器灭火系统有效性验证和消防应急救援演练。
(2)规范性引用文件
(3)术语和定义
包括换流变实体火灾模型、换流变实体火灾场景、油池火、流淌火、喷雾火、预燃时间的定义。
(4)试验设计
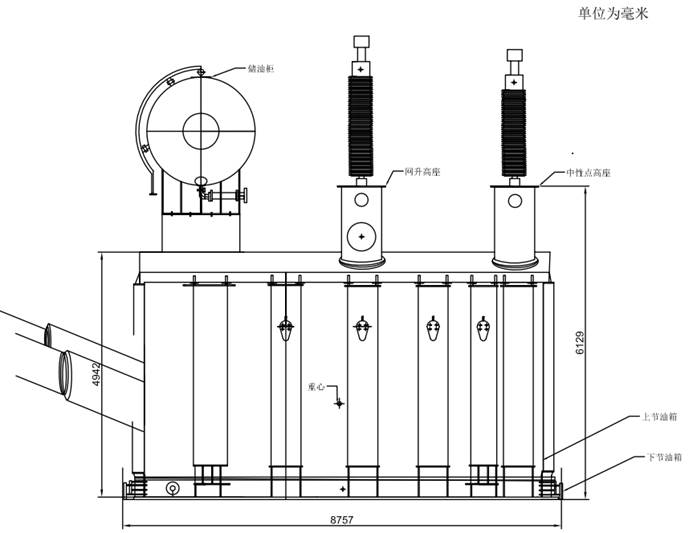
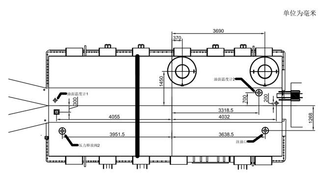
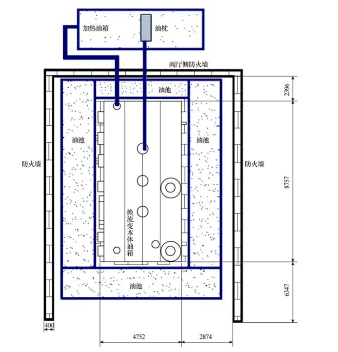
包括换流变实体火灾模型、大型换流变压器火灾场景设计的规定。其中,实体火灾模型几何尺寸和结构说明宜参见图1,燃料空间布置宜参见图2:

(a)正视图

(b)俯视图
图1 大型换流变压器火灾试验模型图

图2 大型换流变压器实体火灾模拟试验燃料布置图
(5)试验方法
包括但不限于试验环境、试验准备、试验时间、试验步骤等方面的规定。其中,大型换流变压器实体火灾模拟试验的场区布置如下图3:

图3 大型换流变压器实体火灾模拟试验厂区布置图
试验用仪器设备见表1:
表1 试验用仪器设备表
|
序号 |
名称 |
数量 |
技术指标 |
布置方式 |
|
1 |
智能可编辑数据采集器 |
不少于2台 |
数据采集通道数不低于256,用于显示和记录测量数据 |
-- |
|
2 |
水冷式热流计 |
不少于10个 |
测量范围0~50 MW/m2,测量热辐射,衡量火灾危险性及灭火有效性 |
试验模型正前方,按一定距离摆放 |
|
3 |
烟气分析仪 |
不少于2台 |
采样速度不低于1 L/min、烟气温度0~1 200 ℃,用于测量氧气、一氧化碳和二氧化碳气体浓度 |
放置于防火墙角落 |
|
4 |
K型热电偶 |
不少于200根 |
量程0~1 200 ℃,精度±0.75% t,用于测量换流变本体油温和火羽流温度 |
主要放置于本体的正面、侧壁及顶部 |
|
6 |
高速摄像机 |
不少于2台 |
帧数不低于960 fps,记录试验自发光过程 |
试验模型的正前方、斜45°位置处 |
|
7 |
高频热像仪 |
不少于2台 |
采样频率不低于60 Hz,记录试验的区域温度 |
试验模型的正前方、斜45°位置处 |
|
8 |
风速仪 |
不少于1个 |
风速范围0~30 m/s,监测试验环境 |
-- |
|
9 |
计时器 |
不少于1个 |
精度不小于1 s,记录试验时间节点 |
-- |
注:靠近换流变本体的摄像头应加装隔热保护罩,采取一用一备的方式,保证摄像机正常工作。
大型换流变压器实体火灾模拟试验记录表见表2:
表2 试验数据记录表
|
试验日期 |
|
|
|
试验工况 |
|
|
|
初始温度(℃)、湿度(%) |
|
|
|
环境风速(m/s) |
|
|
|
安全防护措施有效性 |
|
|
|
点火时刻(s) |
|
|
|
预燃时间(s) |
|
|
|
立体包裹燃烧发展时间(s) |
顶部流淌火充分发展(s) |
|
|
侧壁流淌火充分发展(s) |
|
|
|
油池火发展时间(s) |
|
|
|
升高座处射流火充分发展时间(s) |
|
|
|
灭火系统启动时间(s) |
|
|
|
灭火时间(s) |
|
|
|
换流变本体表面火灾灭火时间(s) |
|
|
|
灭火后变压器油剩余验证(%) |
|
|
|
试验人员 |
|
|
(6)火灾当量计算
包括大型换流变压器实体火灾模型的火源总功率、周围油池火火源功率、顶部油池火火源功率、顶部流淌火火源功率、侧壁流淌火火源功率、喷雾火火源功率计算的规定。
规定大型换流变压器实体火灾模型的火源总功率应按公式(1)计算:

规定大型换流变压器实体火灾模型周围油池火火源功率应按公式(2)计算:

规定大型换流变压器实体火灾模型顶部油池火火源功率应按公式(3)计算:

规定大型换流变压器实体火灾模型顶部流淌火火源功率应按公式(4)计算:

规定大型换流变压器实体火灾模型侧壁流淌火火源功率应按公式(5)计算:

规定大型换流变压器实体火灾模型喷雾火火源功率应按公式(6)计算:

公式(1)~(6)中:
Q——大型换流变压器实体火灾模型火源功率(MW);
S——换流变起火部位火焰有效燃烧面积(m2);
η——换流变起火部位火焰燃烧效率,依据火灾发展,周围油池火、顶部油池火取值0.8~1.0,顶部流淌火、侧壁流淌火取值0.75~1.0;
m——燃烧的变压器油质量(kg);
q——变压器油燃烧的热值(MW/m2)。
(7)安全防护措施
包括突发情况应急处置预案、人员防护措施、试验设备防护措施及防爆措施的规定。
(8)试验报告
规定试验报告应包括以下内容:
a)委托单位名称;
b)换流变实体火灾场景,报警起火时的环境温度、湿度和风速;
c)试验条件,包括变压器油温、用量和空间布置;
d)试验时间;
e)试验结论及试验数据;
f)试验单位及技术负责人。
4 标准制定效益
该标准规范了大型换流变压器实体火灾模拟试验,该标准效益主要体现在:
(1)填补行业空白。聚焦大型换流变压器实体火灾发展全过程,规范大型换流变压器实体火灾模拟试验流程,力争打造行业统一的样版化试验,弥补行业不足。
(2)助力安全防控。通过规范大型换流变压器实体火灾试验流程,系统性整合行业内大型换流变压器实体火灾模拟试验数据,为解决大型换流变压器实体火灾防控问题提供理论支撑。